Puerta rápida apilable de acero FERPAL
La puerta rápida apilable de acero ofrece apertura vertical veloz, alta resistencia y máxima seguridad. Ideal para entornos industriales con alto tránsito y necesidad de eficiencia.

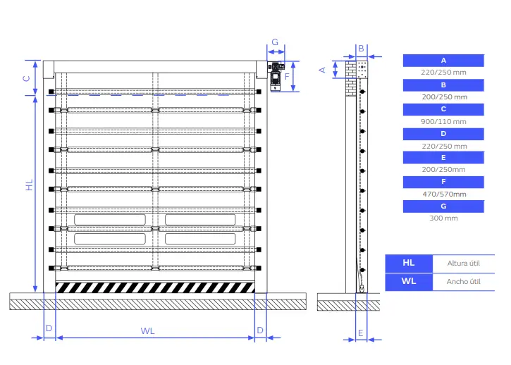
La puerta rápida apilable de acero es una solución robusta y eficiente para el cierre de accesos industriales. Diseñada para ofrecer máxima velocidad, seguridad y durabilidad, esta puerta rápida se adapta perfectamente a plantas de producción, almacenes y zonas logísticas donde el tránsito es constante.
Su funcionamiento se basa en un sistema de apertura vertical, en el que el telón flexible se desplaza hacia arriba, apilándose de manera ordenada en la parte superior. Dos perfiles laterales de acero guían el movimiento del telón, asegurando una apertura y cierre suaves, incluso en entornos de alta frecuencia.
El grupo motorreductor impulsa el tambor de enrollamiento, permitiendo que la puerta rápida ascienda o descienda de forma controlada. Gracias a este sistema, se logra una maniobra precisa y segura. Durante el cierre, la lona desciende por el efecto combinado del motor y su propio peso, garantizando un sellado firme y uniforme.
Esta puerta rápida apilable permite configurar el motor en posición frontal o lateral, brindando flexibilidad en su instalación según las condiciones del espacio. Además, integra fotocélulas de seguridad dentro de las guías, que detectan cualquier obstáculo y activan la inversión del movimiento para evitar accidentes.
Como opción adicional, puede equiparse con una fotocélula reflectiva y una banda inferior resistiva, que refuerzan la seguridad al detener o revertir la maniobra si se produce un impacto.
El cuadro de mando, especialmente diseñado para entornos industriales, permite un control sencillo, seguro y confiable de todas las operaciones.
Componentes principales del sistema:
Guías laterales de acero con perfil de refuerzo.
Cabezal superior con poleas de enrollamiento protegidas.
Grupo motorreductor de alto rendimiento.
Lona flexible de alta resistencia y fácil mantenimiento.
Beneficios destacados:
Apertura vertical rápida y segura.
Diseño resistente a la corrosión y desgaste.
Seguridad reforzada mediante sensores y fotocélulas.
Fácil instalación y mantenimiento.
Ideal para uso intensivo en ambientes industriales.

Características Técnicas – Grupo Motor ELECTROMATEN FFX / FFX
Especificación | FFX | FFX |
---|---|---|
Alimentación estándar | 400V / 230V III ±10% 50Hz | 400V / 230V III ±10% 50Hz |
Tipo de motor | Trifásico autofrenante | Trifásico autofrenante |
Potencia nominal | 2,04 CV / 1,5 kW | 1,5 CV / 1,103 kW / 2,5 CV / 1,84 kW |
Freno | DC con rectificador de media onda | DC separado 230Vac–103Vdc con rectificador de media onda |
Protección del motor | Cuadro GFA Guarda-motor hasta 8A | Cuadro GFA Guarda-motor hasta 8A |
Grado de protección | IP 54 | IP 54 |
Temperatura de funcionamiento | -20 °C a +40 °C | -20 °C a +40 °C |
Desbloqueo | Palanca y manivela | Palanca y tornillo inferior |
Final de carrera | Digital por encoder integrado | Digital por encoder |
Acabados
El chasis del producto está fabricado en acero, lo que permite todos los acabados disponibles para este material:
Lacados:
El lacado es un recubrimiento protector de pintura plástica polimerizada al horno. El grosor mínimo del lacado es de
60 micras. Disponible toda la gama RAL.
Acero inoxidable:
Aleación inoxidable 304. Acero fácil de soldar, fabricar y con una alta resistencia a la corrosión.
Telón:
La lona de poliéster se baña sobre una capa de PVC tintado disponible en los siguientes colores:

Valoraciones
No hay valoraciones aún.